Logements et Parking Public I Montfermeil I 2018
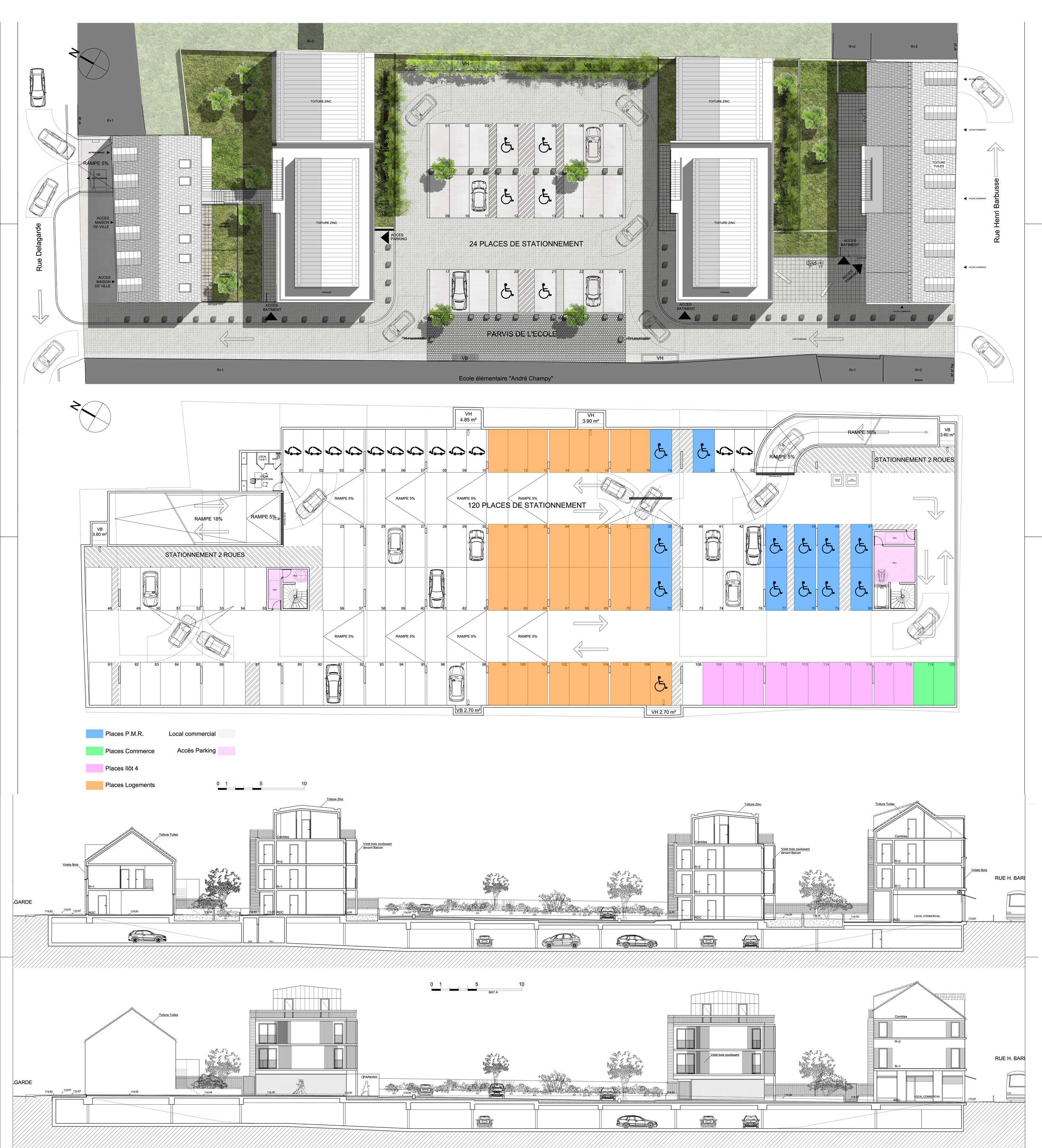
Projet: Construction d’un ensemble de 60 logements, création d’une place publique et d’un
parking public en sous sol de 110 places
Maître d’Ouvrage: Ville de Montfermeil
Equipe: Quadral Promotion / Chiarodo I Maillet / FACEA / Ai Environnement / Plelmos
Surface: 5 000 m²
Coût : 8.5 millons euros HT
Statut: Consultation d’opérateurs - Mars 2017 / Mars 2018



