Maison S I Paris I 2009

Projet: Restructuration d’une maison
Type: Commande privée
Surface: 188 m² 
Lieu: Paris XXème
Maître d’Ouvrage: Privé
Maître d’Oeuvre: Chiarodo I Maillet I architectes
Statut: Livraison fevrier 2009 


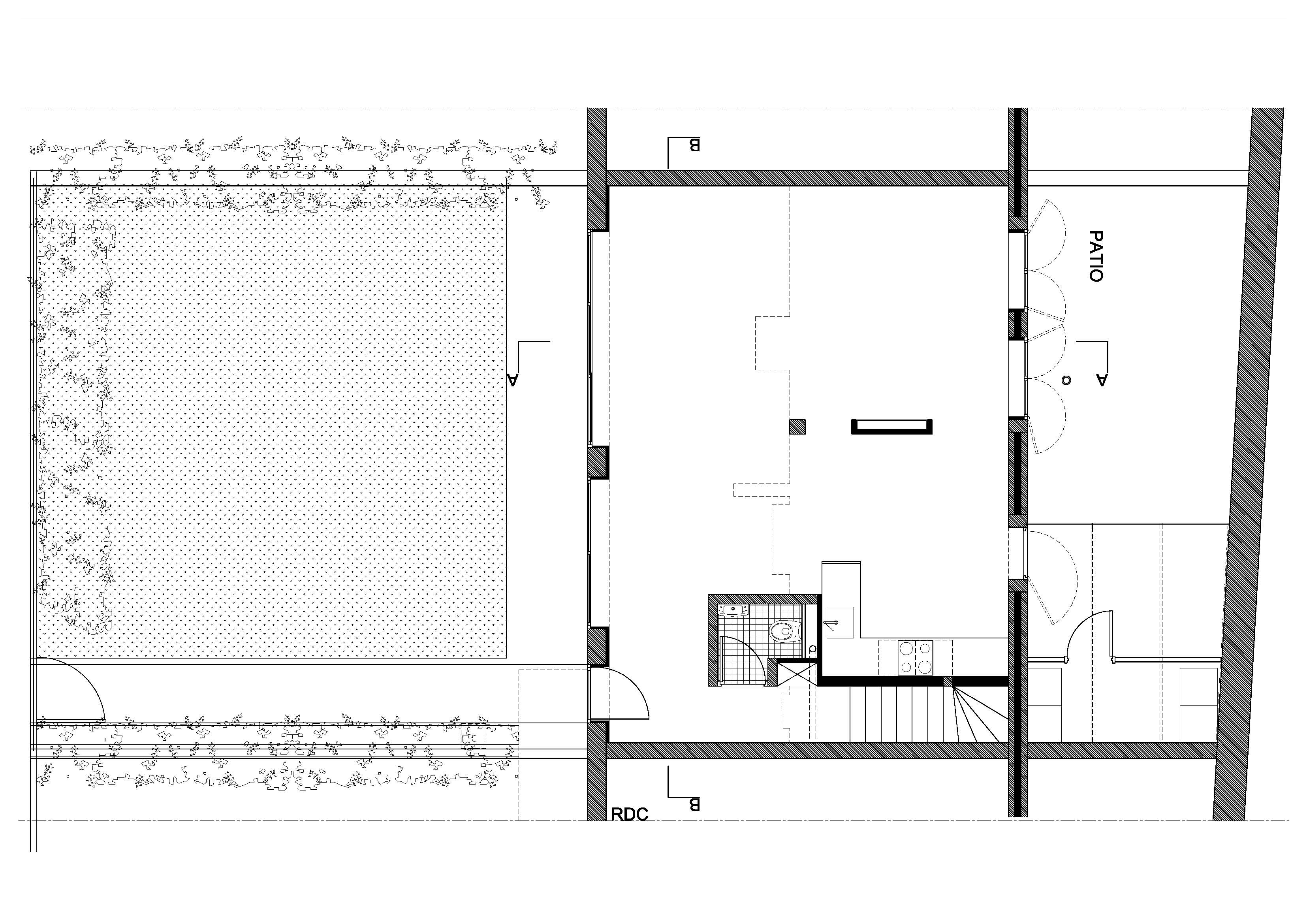
Conçue pour un jeune couple et leurs trois enfants, l’aménagement de la maison S devait répondre à un enjeu principal: rendre à cet ancien atelier la lumière et la fluidité spatiale.

Les propriétaires éclairés et curieux nous ont permis de proposer des solutions spatiales originales.

Nous avons développé un travail sur la transparence, les alternances de pleins, de vides.

Evènement spatial particulier, les volumes suspendus en double hauteur reçoivent les équipements (portes coulissantes, lavabo, douche, wc).

Ce concept nous a permis de créer une bande technique centrale, préservant et qualifiant les transparences et la lumière entre le rez-de-chaussée et la mezzanine.

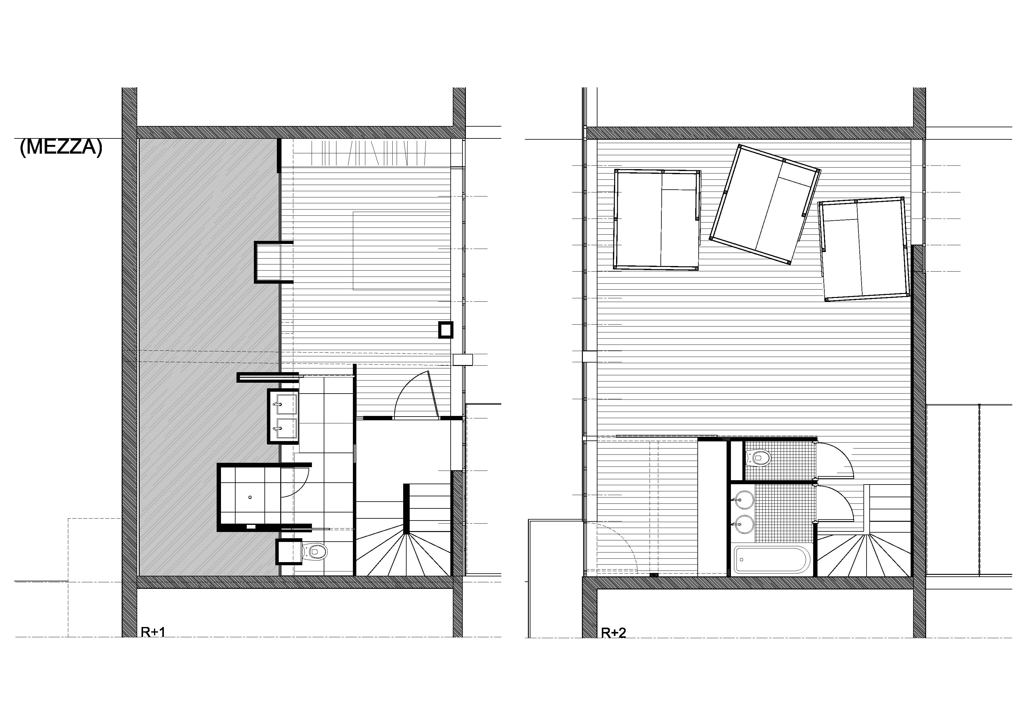
Ce projet de chambre d’enfant fait partie intégrante de la réhabilitation de la Maison S.

Si nous avions d’abord dessiné un projet classique avec trois chambres pour enfants, l’idée des «boîtes à dodo» est venue une fois les travaux de démolition terminés.

Nous avons alors pris conscience que l’étage sous les toits offrait un potentiel très intéressant que nous avons décidé d’exploiter en laissant le plus d’espace libre à cet étage.

L’idée forte repose sur la décomposition de temps importants dans la vie des enfants :
- Le  jeu
- Les devoirs scolaires
- Le repos

Nous avons associé ces trois moments à des fonctions et des lieux différents.
Tandis que le jeu et le travail pouvaient être regroupés dans un grand espace libre modulable, le temps du sommeil imposait un lieu calme intime.
Nous avons donc imaginé le principe de « boîtes » individuelles minimales qui puissent remplir cette fonction.

Pour préserver la fluidité générale de l’espace ces boîtes sont mobiles - et démontables - et il est possible de créer différentes partitions du plateau.

Chaque enfant peut s’isoler dans sa chambre tout en profitant d’un grand espace de jeux.